Leave a Message

Thank you for your message. We will be in touch with you shortly.

Explore Our Properties

Property Description

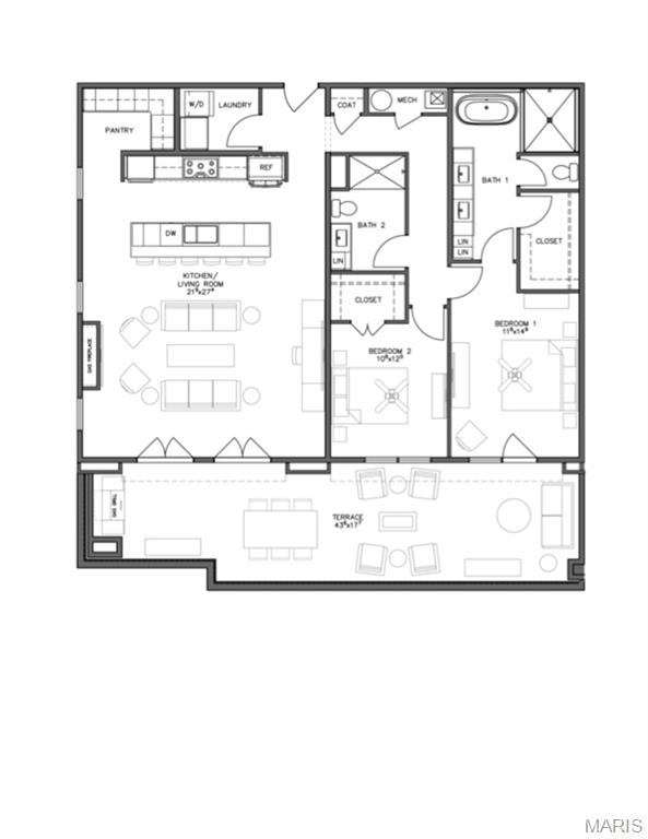
To Be Built! **Builder is offering a $5000 credit towards closing costs for a signed contract by March 1st. ** Elevate your lifestyle at The Augusta on Main, where timeless charm meets elevated modern luxury. This exclusive 2-bedroom, 2-bathroom penthouse offers an unparalleled living experience in the heart of Historic Main Street, St. Charles--just steps from vibrant restaurants, boutique shops, and riverfront trails.

Every detail in this top-floor residence has been thoughtfully designed, from the soaring ceilings and expansive windows to the designer finishes and hand-selected materials that bring both comfort and sophistication to every space. The chef-inspired kitchen features stainless steel appliances, quartz countertops, and custom cabinetry that opens seamlessly into a light-filled living and dining area--perfect for entertaining or relaxing in refined comfort. This penthouse also includes dedicated parking, access to an on-site fitness center, and an exclusive rooftop deck with sweeping views of downtown St. Charles--ideal for enjoying coffee at sunrise or cocktails at sunset. This is your opportunity to own a one-of-a-kind penthouse in one of the region's most desirable walkable neighborhoods. Only 4 units available.

Overview

Property Status
For Sale
Lot Size
7,000.09 Sq.Ft.
MLS ID
26006248
Property Type
Condo
Year Built
2025

Features & Amenities

Architecture Styles
High-Rise-4 Stories
Stories
1
Garage Spaces
1.0
Water Source
Public
Utilites
Cable Available
Lot Features
Level
Heat Type
Forced Air
Air Conditioning
Central Air
Fireplace
Living Room
Appliances
Cooktop, Dishwasher, Disposal, Microwave, Oven, Refrigerator, Washer/Dryer
Other Interior Features
Ceiling Fan(s), Crown Molding, Custom Cabinetry, Eat-in Kitchen, High Ceilings, Kitchen Island, Open Floorplan, Recessed Lighting
Sewer
Public Sewer
HOA Amenities
Association Management, Common Ground, Elevator(s), Game Room, Meeting Room, Parking, Party Room, Roof Deck, Sauna
Other Exterior Features
Barbecue, Courtyard
Elementary School
Lincoln Elem.
Middle School
Jefferson / Hardin
High School
St. Charles High
School District
St. Charles R-VI
Sales Price
$775,000
HOA
$562/mo

Downloads

1121 S Main Street Unit: 403

Schedule a Tour

We would love to help you see this beautiful home! As a full-service brokerage, we can help you tour. Please submit an offer, and answer questions about the buying process.

Thank you

for your interest in 1121 S Main Street Unit: 403, St Charles, MO 63301

1121 S Main Street Unit: 403
Navigate

Mortgage Calculator

Estimate your monthly mortgage payment, including the principal and interest, property taxes, and HOA. Adjust the values to generate a more accurate rate.
$0,000 Your Payment 20 15 65
$0,000 Your Payment

I'm Interested In

1121 S Main Street Unit: 403

or
  • CallKatie McLaughlin

    License #2001016392

    314.283.8444
  • Stunning Homes, Exceptional Opportunities

    Featured Listings

    Explore a curated selection of premier properties available in St. Louis.

    • 132 N Brentwood Boulevard For Sale

      $8,500,000

      132 N Brentwood Boulevard, Clayton, MO 63105

      • 4 Beds
      • 7 Baths
      • 7,383 Sq.Ft.
    • 466 S Price Road Sold

      Price Upon Request

      466 S Price Road, Ladue, MO 63124

      • 4 Beds
      • 6 Baths
      • 8,166 Sq.Ft.
    • 42 Countryside Lane Sold

      Price Upon Request

      42 Countryside Lane, Frontenac, MO 63131

      • 6 Beds
      • 7 Baths
      • 8,822 Sq.Ft.
    • 6 Bridle Lane Sold

      Price Upon Request

      6 Bridle Lane, Frontenac, MO 63131

      • 5 Beds
      • 8 Baths
      • 10,024 Sq.Ft.
    • 17 Glencairn Lane Sold

      Price Upon Request

      17 Glencairn Lane, Ladue, MO 63124

      • 5 Beds
      • 7 Baths
      • 7,594 Sq.Ft.
    • 8 Lochinvar Drive Sold

      Price Upon Request

      8 Lochinvar Drive, Town and Country, MO 63131

      • 5 Beds
      • 5 Baths
      • 9,125 Sq.Ft.
    • 544 Quail Ridge Lane Active

      $3,595,000

      544 Quail Ridge Lane, St. Albans, MO 63073

      • 7 Beds
      • 8 Baths
      • 11,239 Sq.Ft.
    • 972 Masonridge Road Sold

      Price Upon Request

      972 Masonridge Road, Town and Country, MO 63141

      • 5 Beds
      • 7 Baths
      • 8,735 Sq.Ft.
    • 9928 Litzsinger Road For Sale

      $3,500,000

      9928 Litzsinger Road, Ladue, MO 63124

      • 6 Beds
      • 6 Baths
      • 5,575 Sq.Ft.
    • 544 Quail Ridge Lane Pending

      $3,495,000

      544 Quail Ridge Lane, St Albans, MO 63073

      • 7 Beds
      • 8 Baths
      • 11,239 Sq.Ft.
    • 964 Masonridge Road Sold

      Price Upon Request

      964 Masonridge Road, Town and Country, MO 63141

      • 4 Beds
      • 6 Baths
      • 8,168 Sq.Ft.
    • 12903 Tundra Ct Sold

      Price Upon Request

      12903 Tundra Ct, Town and Country, MO 63131

      • 4 Beds
      • 5 Baths
      • 6,073 Sq.Ft.
    • 25 Manderleigh Estates Court Sold

      Price Upon Request

      25 Manderleigh Estates Court, Frontenac, MO 63131

      • 4 Beds
      • 6 Baths
      • 6,715 Sq.Ft.
    • 11758 Westham Drive For Sale

      $3,395,000

      11758 Westham Drive, Town and Country, MO 63131

      • 6,000 Sq.Ft.
    • 12 Ladue Manor Sold

      Price Upon Request

      12 Ladue Manor, Ladue, MO 63124

      • 7 Beds
      • 7 Baths
      • 6,856 Sq.Ft.
    • 20 Picardy Lane Sold

      Price Upon Request

      20 Picardy Lane, Ladue, MO 63124

      • 4 Beds
      • 5 Baths
      • 5,120 Sq.Ft.
    • 2717 N Geyer Road Sold

      Price Upon Request

      2717 N Geyer Road, Frontenac, MO 63131

      • 5 Beds
      • 7 Baths
      • 10,570 Sq.Ft.
    • 413 Stonechase Lane Sold

      Price Upon Request

      413 Stonechase Lane, Town and Country, MO 63141

      • 5 Beds
      • 7 Baths
      • 7,753 Sq.Ft.
    • 11600 Clayton Road Sold

      Price Upon Request

      11600 Clayton Road, Frontenac, MO 63131

      • 4 Beds
      • 6 Baths
      • 5,223 Sq.Ft.
    • 61 Briarcliff Sold

      Price Upon Request

      61 Briarcliff, Ladue, MO 63124

      • 5 Beds
      • 6 Baths
      • 6,346 Sq.Ft.
    • 436 Tregaron Place Pending

      $2,299,000

      436 Tregaron Place, Frontenac, MO 63131

      • 4 Beds
      • 5 Baths
      • 6,840 Sq.Ft.
    • 45 Ballas Court Sold

      Price Upon Request

      45 Ballas Court, Town and Country, MO 63131

      • 6 Beds
      • 6 Baths
      • 6,849 Sq.Ft.
    • 10 Log Cabin Drive Sold

      Price Upon Request

      10 Log Cabin Drive, Ladue, MO 63124

      • 4 Beds
      • 5 Baths
      • 5,282 Sq.Ft.
    • 26 Bellerive Country Club Grounds Drive Sold

      Price Upon Request

      26 Bellerive Country Club Grounds Drive, Town and Country, MO 63141

      • 4 Beds
      • 7 Baths
      • 5,206 Sq.Ft.
    • 12050 Carberry Place Sold

      Price Upon Request

      12050 Carberry Place, Town and Country, MO 63131

      • 5 Beds
      • 9 Baths
      • 8,214 Sq.Ft.
    • 4 Rutherford Lane Sold

      Price Upon Request

      4 Rutherford Lane, Town and Country, MO 63131

      • 5 Beds
      • 5 Baths
      • 6,026 Sq.Ft.
    • 8122 Teasdale Avenue Sold

      Price Upon Request

      8122 Teasdale Avenue, University City, MO 63130

      • 4 Beds
      • 5 Baths
      • 5,070 Sq.Ft.
    • 14 Frontenac Place Drive Sold

      Price Upon Request

      14 Frontenac Place Drive, Frontenac, MO 63131

      • 4 Beds
      • 6 Baths
      • 6,302 Sq.Ft.
    • 401 Conway Aire Drive Sold

      Price Upon Request

      401 Conway Aire Drive, Creve Coeur, MO 63141

      • 5 Beds
      • 5 Baths
      • 5,905 Sq.Ft.
    • 39 Muirfield Lane Sold

      Price Upon Request

      39 Muirfield Lane, Town and Country, MO 63141

      • 4 Beds
      • 5 Baths
      • 4,186 Sq.Ft.
    • 6 Wickersham Lane Sold

      Price Upon Request

      6 Wickersham Lane, Ladue, MO 63124

      • 4 Beds
      • 5 Baths
      • 4,000 Sq.Ft.
    • 3 Daniel Road Sold

      Price Upon Request

      3 Daniel Road, Ladue, MO 63124

      • 4 Beds
      • 4 Baths
      • 4,026 Sq.Ft.
    • 1205 Tammany Lane Sold

      Price Upon Request

      1205 Tammany Lane, Town and Country, MO 63131

      • 5 Beds
      • 6 Baths
      • 3,902 Sq.Ft.
    • 13028 Conway Estates Drive Sold

      Price Upon Request

      13028 Conway Estates Drive, Town and Country, MO 63141

      • 4 Beds
      • 6 Baths
      • 5,768 Sq.Ft.
    • 619 N Clay Avenue Sold

      Price Upon Request

      619 N Clay Avenue, Kirkwood, MO 63122

      • 4 Beds
      • 4 Baths
      • 3,634 Sq.Ft.
    • 470 Killearn Lane Sold

      Price Upon Request

      470 Killearn Lane, Town and Country, MO 63141

      • 5 Beds
      • 7 Baths
      • 4,403 Sq.Ft.
    • 6 Vanessa Drive Sold

      Price Upon Request

      6 Vanessa Drive, Town and Country, MO 63131

      • 5 Beds
      • 5 Baths
      • 4,763 Sq.Ft.
    • 12371 Ironstone Road Sold

      Price Upon Request

      12371 Ironstone Road, Des Peres, MO 63131

      • 5 Beds
      • 4 Baths
      • 3,144 Sq.Ft.
    • 1525 Windridge Court Sold

      Price Upon Request

      1525 Windridge Court, Des Peres, MO 63131

      • 4 Beds
      • 5 Baths
      • 4,988 Sq.Ft.
    • 1008 Kirkham Avenue Sold

      Price Upon Request

      1008 Kirkham Avenue, Glendale, MO 63122

      • 6 Beds
      • 4 Baths
      • 4,146 Sq.Ft.
    • 653 Hawbrook Avenue Sold

      Price Upon Request

      653 Hawbrook Avenue, Kirkwood, MO 63122

      • 5 Beds
      • 3 Baths
      • 2,737 Sq.Ft.
    • 26 Log Cabin Drive Sold

      Price Upon Request

      26 Log Cabin Drive, Ladue, MO 63124

      • 4 Beds
      • 3 Baths
      • 4,147 Sq.Ft.
    • 9002 Sedgwick Place Drive Sold

      Price Upon Request

      9002 Sedgwick Place Drive, Richmond Heights, MO 63124

      • 2 Beds
      • 4 Baths
      • 3,042 Sq.Ft.
    • 7425 Parkdale Avenue Sold

      Price Upon Request

      7425 Parkdale Avenue, Clayton, MO 63105

      • 4 Beds
      • 3 Baths
      • 2,626 Sq.Ft.
    • 770 Straub Road For Sale

      $925,000

      770 Straub Road, Chesterfield, MO 63017

      • 4 Beds
      • 3 Baths
      • 2,624 Sq.Ft.
    • 1325 Spring Snow Drive Sold

      Price Upon Request

      1325 Spring Snow Drive, Frontenac, MO 63131

      • 2 Beds
      • 3 Baths
      • 3,173 Sq.Ft.
    • 415 Thorntree Lake Court Sold

      Price Upon Request

      415 Thorntree Lake Court, Eureka, MO 63025

      • 4 Beds
      • 5 Baths
      • 4,360 Sq.Ft.
    • 155 Forest Club Drive Sold

      Price Upon Request

      155 Forest Club Drive, Clarkson Valley, MO 63005

      • 4 Beds
      • 4 Baths
      • 3,197 Sq.Ft.
    • 512 Coverdale Lane Sold

      Price Upon Request

      512 Coverdale Lane, Kirkwood, MO 63122

      • 5 Beds
      • 4 Baths
      • 3,010 Sq.Ft.
    • The Augusta - 2 Bedroom Active

      $825,000

      1121 S Main St, 406, St. Charles, MO 63301

      • 2 Beds
      • 2 Baths
      • 1,544 Sq.Ft.
    View All Properties

    Follow Us On Instagram